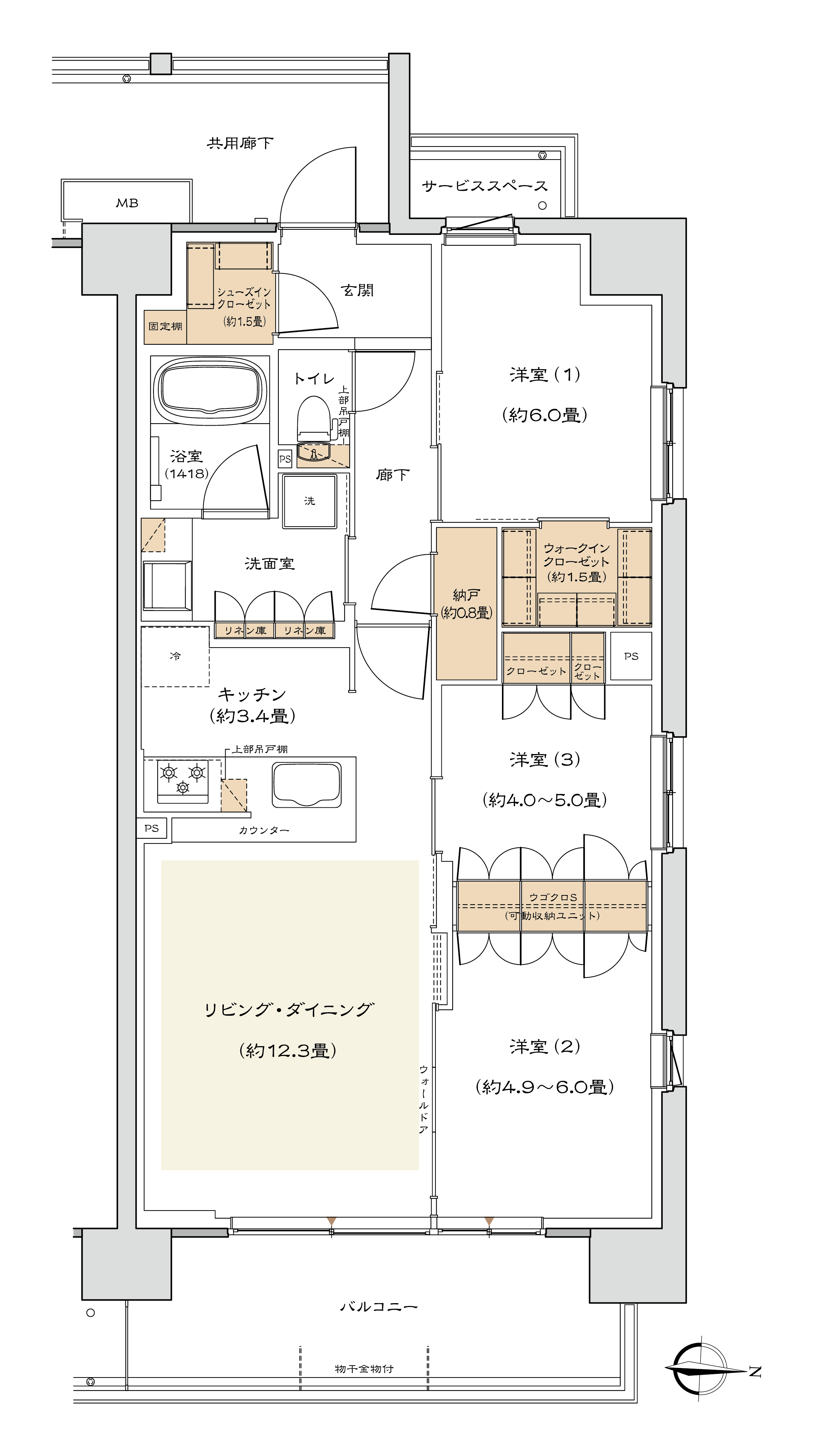
リーフィア リーフィアレジデンス海老名ブライトガーデン プラン Bタイプ PLAN PLAN 先着順販売対象住戸 A1Type 3LDK+WIC+SIC+N+ウゴクロS 専有面積/75.52㎡(約22.84坪) バルコニー面積/11.21㎡ 居室の広さをアレンジできる 可動収納ウゴクロS付きプラン。 住まいのこだわり ウゴクロS 壁面いっぱいのリネン庫 ウォールドア シューズインクローゼット 納戸 通風採光にすぐれた角住戸 収納 床暖房範囲 WIC:ウォークインクローゼット SIC:シューズインクローゼット N:納戸 MB:メーターボックス PS:パイプスペース ※掲載の間取りは図面を基に描き起こしたもので実際とは多少異なります。 閉じる 印刷する 物件エントリー 来場予約 トップ 新しいまちづくり デザイン ロケーション 第3の寛ぎ空間 アクセス プラン 収納 モデルルーム 設備仕様 長い快適の約束 ブランド 現地案内図 物件概要 物件エントリー 来場予約